+33 6 44 29 21 92 patric.bernheim@gmail.com
Sélectionner une page

NOUS VOUS PRESENTONS CERTAINES DE NOS REALISATIONS  ET PROJETS 

Demandes d’extension, rénovation, isolation, mise aux normes, dans des appartements, maisons ou fermes villageoises.

LES PHOTOS SONT EFFECTUEES SANS FILTRES NI MONTAGES

Nos clients ont besoin d’être accompagnés pour définir les projets de transformation, extension ou aménagement de leur espace de vie.
Nous leur apportons notre expertise dès le début du projet avec un accompagnement tout au long de la réalisation de celui-ci.

Rénovation d’un studio
Transformer un studio des années 1970 en studio moderne et fonctionnel tout en gardant un style montagnard.

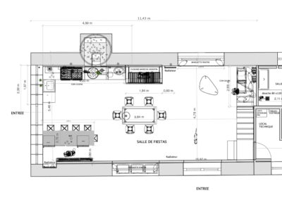
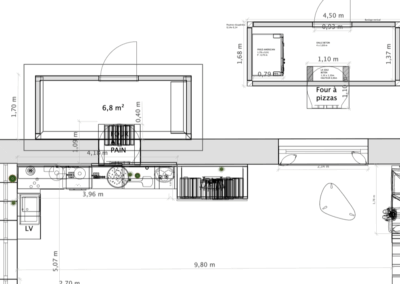
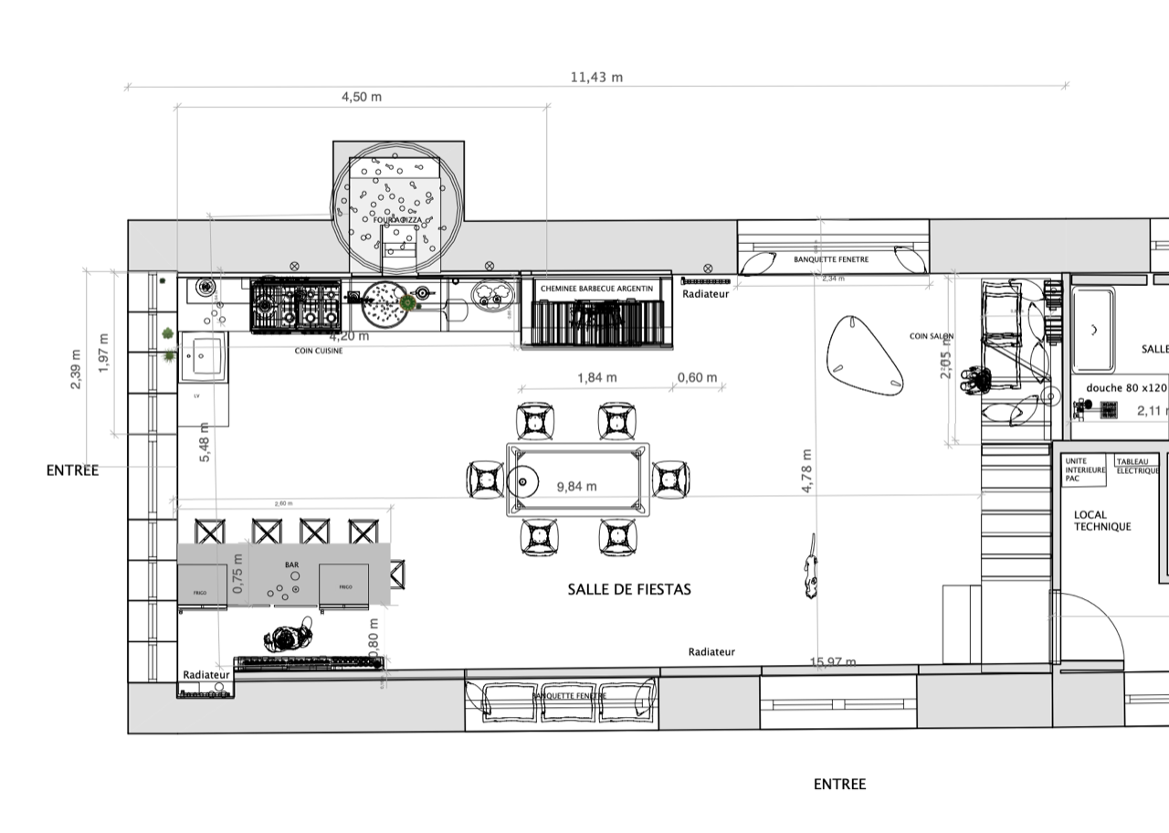
Etude de projet 
Pour la réalisation d’une salle de fiestas avec cheminée et four à pizzas.

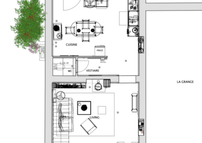
Rénovation d’une ancienne maison de gardien
Projet visuel en 3D et plan 

Extension de maison 
Rajouter une surface supplémentaire pour l’espace à vivre et propositions d’aménagements.

Chalet à la montagne
Transformer l’intérieur du chalet en apportant un plus grand confort et une touche de modernité.

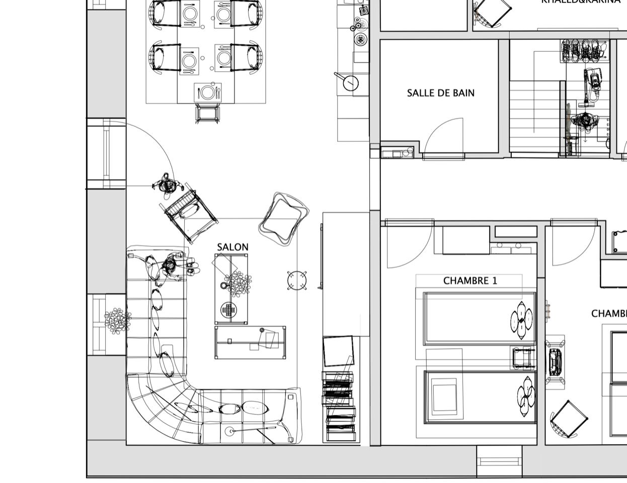
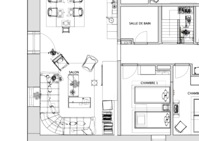
Appartement
Projet de rénovation d’un appartement pour location saisonnière

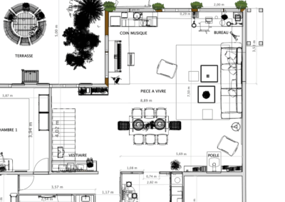
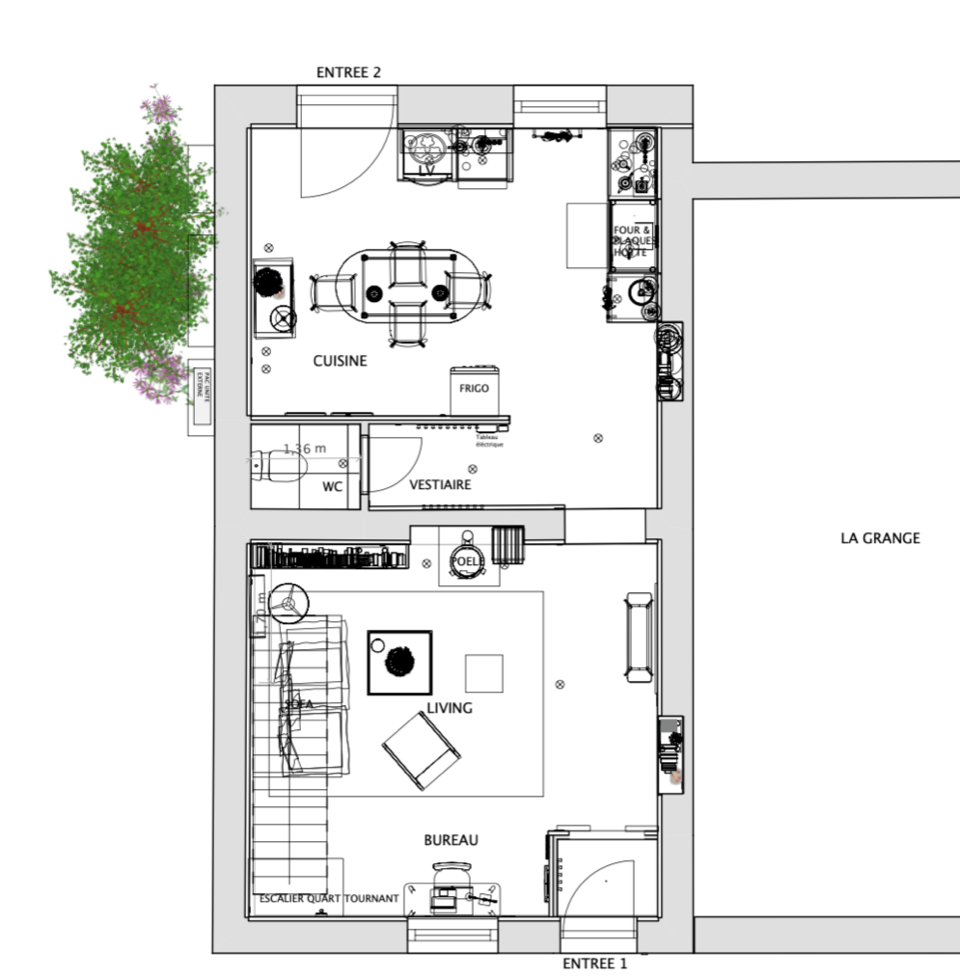
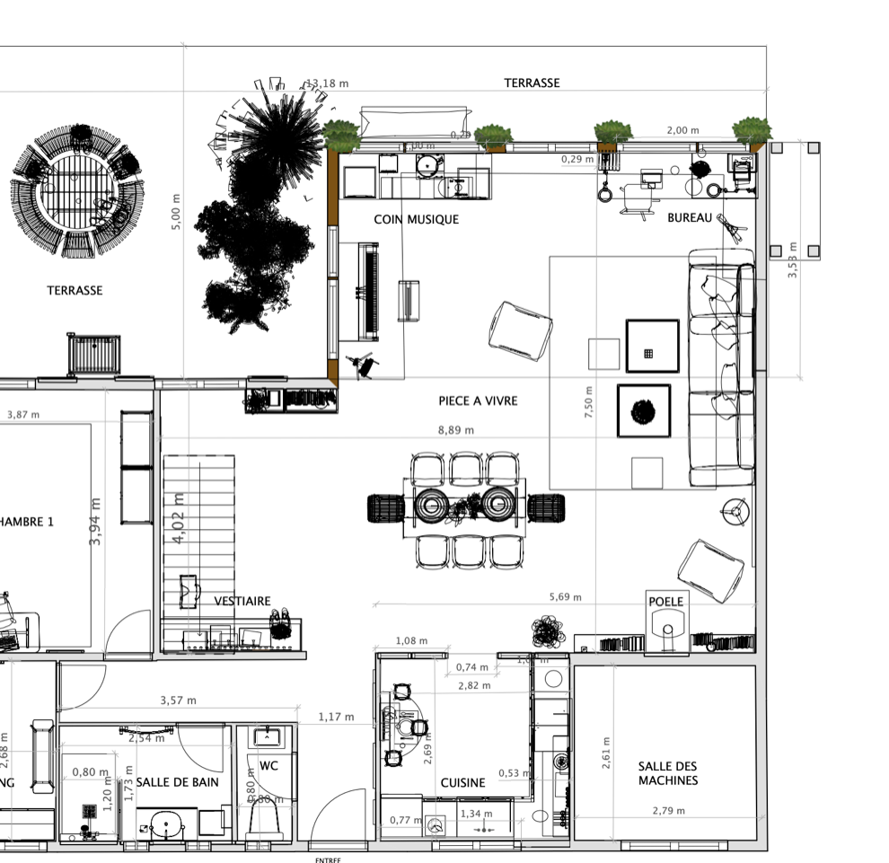
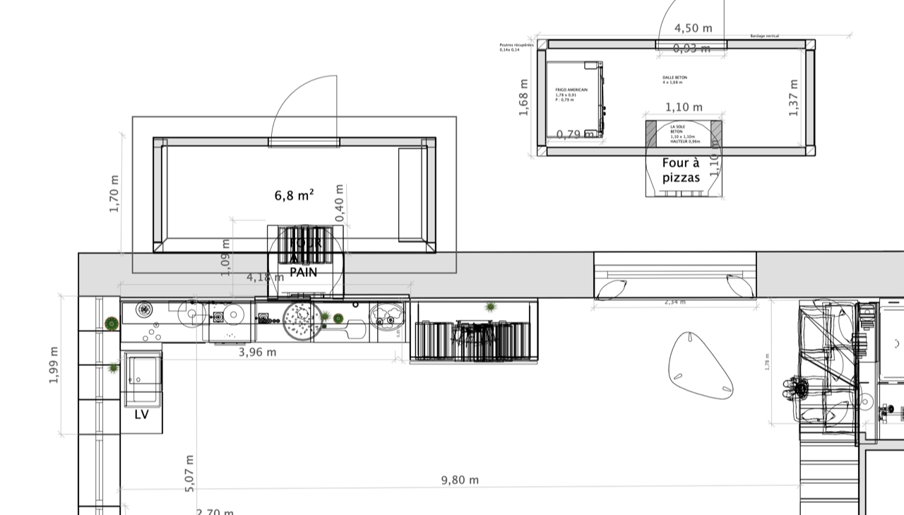
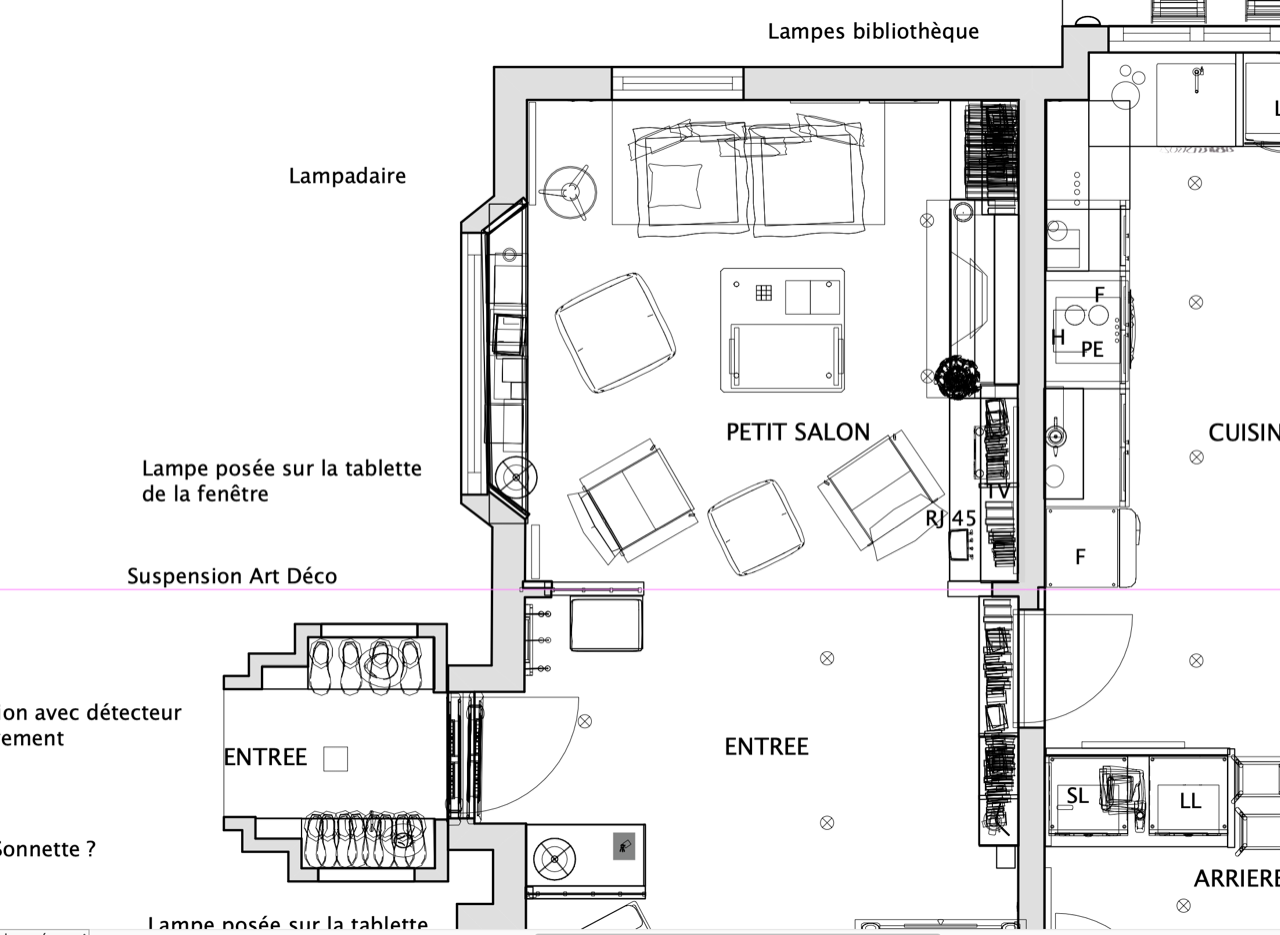
Rénovation et transformation d’un corps de ferme
Transformer une ferme et y apporter un intérieur moderne tout en conservant l’esprit montagnard. Isolation maximale pour créer un éco-système de vie sans apport d’énergie électrique ou gaz pour le chauffage. Le flux d’air continu garanti une atmosphère agréable et à température constante.